网站首页
关于智一特
公司简介
合作伙伴
企业风采
人才招聘
联系我们
厨房设备产品
天然气灶具类
商用电磁灶类
电加热厨具类
商用制冷设备
食品加工机械
不锈钢调理类
西餐后厨厨具
清洗消毒设备
排烟环保设备
快餐桌椅设备
厨房工程案例
饭店厨房设备
连锁餐饮厨房
单位食堂厨房
医院职工食堂
酒店后厨设备
学校食堂厨房
厨房工程设计
厨房设计规划原则
厨房设计规划流程
厨房设计相关案例
厨房设计预约上门
新闻资讯中心
公司新闻中心
行业资讯
技术支持
企业人才招聘
联系我们
客户留言
联系我们
厨房工程设计
Kitchen Project Design
厨房设计规划原则
厨房设计规划流程
厨房设计相关案例
厨房设计预约上门
联系我们
陕西智一特厨具有限公司
地址:陕西·西安·西咸新区蔺高工业园
电话:18392893921
传真:18392893921
网址:www.leytic.com
厨房工程设计-厨房设计相关案例
当前位置:
首页
>
厨房工程设计
厨房设计相关案例
商用厨房
一般在整体建筑完工后才开始规划,所以往往受很多现场因素影响,整体结构、水电位置、排烟情况等等,需要有经验的设计和实际项目经验者设计规划,能很多后期操作管理问题,增加设计使用率,降低投资成本,促使后厨环境井然有序。
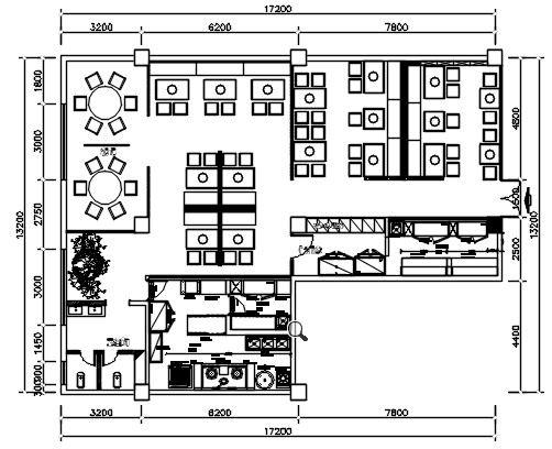
厨房后厨设计案例一
厨房后厨设计案例二
厨房后厨设计案例三
厨房后厨设计案例四
厨房后厨设计案例五
厨房后厨设计案例六
厨房后厨设计案例七
厨房后厨设计案例八
厨房后厨设计案例十
陕西智一特厨具承接大小
厨房设备工程
,酒店后厨、单位食堂、医院食堂、学校食堂、饭店厨房、小吃城厨房、茶餐厅等厨房设计、规划、施工图。欢迎来电垂询18392893921.
工程设计推荐
厨房设计布局的意义
厨房规划设计内容
厨房设计预约上门
关于我们
公司简介
合作伙伴
企业风采
人才招聘
联系方式
产品中心
天然气灶具类
商用电磁灶类
电加热厨具类
商用制冷设备
食品加工机械
不锈钢调理类
工程案例
饭店厨房设备
连锁餐饮厨房
单位食堂厨房
医院职工食堂
酒店后厨设备
学校食堂厨房
新闻资讯
公司新闻
行业资讯
技术支持
智一特厨具公众号
智一特厨具手机版
Copyright www.leytic.com © 2020-2050 All Rights Reserved 陕西智一特厨具有限公司 版权所有
地址:陕西·西安·西咸新区蔺高工业园 全国统一客服热线:18392893921 李经理
电话:18392893921 传真:18392893921 邮箱:2818281251@qq.com
陕ICP备2021015108号